Добро пожаловать на http://vipplan.ru

Випплан Арсеньев - это тысячи проектов домов в нашем каталоге!

Вы всегда сможете найти для себя проект дома вашей мечты! Даже если этого не случилось, мы готовы в любую минуту предложить проект индивидуального дома.

Забыли пароль?
Вы еще не регистрировались?

Перейдите по ссылке ниже на страницу регистрации.

Регистрация...

Внимание!!!

В проектную документацию могут быть внесены изменения любой сложности, в соответствии в Вашими пожеланиями!

Полезные статьи

Типы и разновидности кровли

Кровля состоит из сплошного настила, стяжки и обрешетки, поддерживающих стропила и несколько слоев изоляции, призванных уберечь кровельное пространство от негативного воздействия пара и влаги....

Проект дома

Строительство дома начинается с подготовительного этапа, основной частью которого является проект. Разработка дизайнерского проекта сопровождается оформлением документов после выбора участка....

Проекты домов и коттеджей > Каталог проектов домов > Дом с мансардой, гаражом, террасой и балконами Vg1081

Дом с мансардой, гаражом, террасой и балконами Vg1081

Дом с мансардой, гаражом, террасой и балконами
Зарегистрируйтесь

Проект № Vg1081


Техническое описание
Общая площадь: 183.65 м2
Жилая площадь: 91.36 м2
Высота здания: 8.73 м
Размеры дома: 13.9м×13.6м
Кол-во комнат: 5
Цокольный этаж: нет
Гараж: нет
Мансарда: есть

Kонструкция
Фундамент: Ленточный, монолитный, ж/б
Перекрытия: Деревянные
Материал стен: Газобетон

Архитектурный раздел
Конструктивный раздел
АР+КР - 60 000 (Со скидкой 20%)
Проект индивидуального одноэтажного одноквартирного жилого дома с размерами здания 13,90 x 13,60 м. Наружная отделка здания - фасадная штукатурка и камень. Фундамент - ленточный, монолитный ж/б . Наружные стены - газобетонные блоки, экструдированный пенополистирол с отделкой фасадной штукатуркой и камнем. Внутренние стены - из газобетонных блоков. Перегородки выполняются каркасными с ГКЛ . Снаружи вентканалы и дымоходы оштукатуриваются. Перемычки - монолитные и сварные из профиля проката. Перекрытие над первым этажом - по деревянным балкам с использованием теплошумоизоляционных материалов типа "URSA" в межбалочном пространстве. Пол первого этажа - пол по грунту. Крыша двухскатная. Кровля - гибкая черепица. Окна - металлопластиковые, выполненные по индивидуальному заказу.
Генплан застройки участка / Паспорт проекта 7000 руб / 10000 руб
Инженерный раздел (полный) 92000 руб
Смета на строительство 46000 руб
Теплотехнический расчет материалов стен Бесплатно
Стоимость проекта со незначительнми изменениями 70400 руб
Стоимость проекта со средними изменениями* 84200 руб
Стоимость проекта со значительными изменениями** 87900 руб

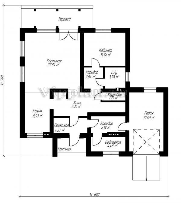
План первого этажа


Гостиная — 27,84 кв м
Кабинет — 11,93 кв м
Кухня — 8,93 кв м
Холл — 9,36 кв м
С/у — 3,78 кв м
Кладовая — 1,73 кв м
Коридор — 3,64 кв м
Прихожая — 4,57 кв м
Бойлерная — 4,48 кв м
Коридор — 5,12 кв м
Гараж — 17,60 кв м

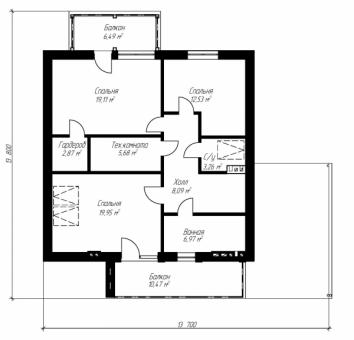
План мансардного этажа


Спальня — 19,11 кв м
Спальня — 12,53 кв м
Балкон — 6,49 кв м
Гардероб — 2,87 кв м
Помещение — 5,68 кв м
С/у — 3,26 кв м
Холл — 8,09 кв м
Ванная — 6,97 кв м
Спальня — 19,95 кв м
Балкон — 10,47 кв м
Дом с мансардой, гаражом, террасой и балконами Дом с мансардой, гаражом, террасой и балконами Дом с мансардой, гаражом, террасой и балконами Дом с мансардой, гаражом, террасой и балконами
Внесение изменений и привязка к участку строительства

В любой из проектов от компании VIPplan - Арсеньев по вашему желанию могут быть внесены изменения в материалы стен, материалы наружной отделки дома, а также будет произведена адаптация проекта под конкретный регион строительства (с учетом грунтов региона, геологических особенностей вашего участка и местных климатических условий) - БЕСПЛАТНО !!! (кроме проектов со скидкой и проектов наших партнеров).

Любой из проектов, размещенных на сайте arsenev.vipplan.ru мы можем выполнить из требуемых вам строительных материалов: ячеистый бетон (газобетон, пеноблок), керамоблок, кирпич, шлакоблок, бетонный блок, дерево (брус, клееный брус), каркасная технология (деревянный каркас, металлокаркас (ЛСТК)).

Фасад дома и его наружную отделку так же возможно выполнить с применением различных облицовочных материалов: структурной штукатурки, (с утеплителем и без), сайдингом (пластиковый или металлосайдинг), фиброплитами, кирпича.

 
6 Избранные
проекты

Доставка проектов по России: Москва (Московская область), Санкт-Петербург (Ленинградская область), Краснодар, Ростов-на-Дону, Ставрополь, Сочи, Волгоград, Новосибирск, Белгород, Брянск, Воронеж, Саратов, Хабаровск, Астрахань, Нальчик, Владикавказ, Екатеринбург, Тюмень, Самара, Нижний Новгород, Казань, Пермь, Уфа, Челябинск, Красноярск, Ханты-Мансийск, Иркутск, Курган, Оренбург, Омск, Томск, Барнаул, Новокузнецк, Кемерово, Абакан, Чита, Якутск, Южно-Сахалинск, Петропавловск-Камчатский и страны ближнего зарубежья: Белоруссия, Украина, Казахстан