Добро пожаловать на http://vipplan.ru

Випплан Арсеньев - это тысячи проектов домов в нашем каталоге!

Вы всегда сможете найти для себя проект дома вашей мечты! Даже если этого не случилось, мы готовы в любую минуту предложить проект индивидуального дома.

Забыли пароль?
Вы еще не регистрировались?

Перейдите по ссылке ниже на страницу регистрации.

Регистрация...

Внимание!!!

В проектную документацию могут быть внесены изменения любой сложности, в соответствии в Вашими пожеланиями!

Полезные статьи

Как сделать мансардную крышу

Мансарда - обеспечивает дополнительную жилую площадь одно- или двухуровневой постройке за счет подкровельного пространства и, благодаря видимым элементам конструкции крыши, выполняет немаловажную эстетическую функцию. Дома с мансардой достаточно распространены в Приморском крае благодаря своей привлекательности и неповторимости. ...

Выбор проекта дома в Арсеньеве

Выбор проекта дома может завести семью в тупик. Прийти к одному конкретному мнению всем членам семьи очень сложно. Кому-то по душе, чтобы дом был большой и одноэтажный, с красивой террасой или верандой, кому-то хочется жить в двухэтажном доме с балконом. Детям, в основном, нравятся дома с мансардой....

Проекты домов и коттеджей > Каталог проектов домов > Проект коттеджа с мансардой и гаражом Vg1451

Проект коттеджа с мансардой и гаражом Vg1451

Проект коттеджа с мансардой и гаражом
Зарегистрируйтесь

Проект № Vg1451


Техническое описание
Общая площадь: 185.62 м2
Жилая площадь: 96.25 м2
Высота здания: 8.5 м
Размеры дома: 17.44м×11.44м
Кол-во комнат: 4
Цокольный этаж: нет
Гараж: нет
Мансарда: есть

Kонструкция
Фундамент: Ленточный монолитный ж/б
Перекрытия: Деревянные балки

Архитектурный раздел
Конструктивный раздел
АР+КР - 60 000 (Со скидкой 20%)
Проект индивидуального одноэтажного жилого дома с мансардой с размерами здания 17,44 x 11,44 м. Наружная отделка здания – облицовочный кирпич, камень. Фундамент – ленточный монолитный ж/б. Наружные стены – из шлакоблока с утеплением экструдированным пенополистиролом и отделкой облицовочным кирпичом, частично каменем. Внутренние стены – из шлакоблока. Перегородки – из шлакоблока. Пол первого этажа пол по грунту, межэтажное перекрытие – сборные ж/б плиты перекрытия. Крыша двускатная. Кровля – металлочерепица. Окна — металлопластиковые
Генплан застройки участка / Паспорт проекта 7000 руб / 10000 руб
Инженерный раздел (полный) 93000 руб
Смета на строительство 46500 руб
Теплотехнический расчет материалов стен Бесплатно
Стоимость проекта со незначительнми изменениями 70350 руб
Стоимость проекта со средними изменениями* 84300 руб
Стоимость проекта со значительными изменениями** 88000 руб

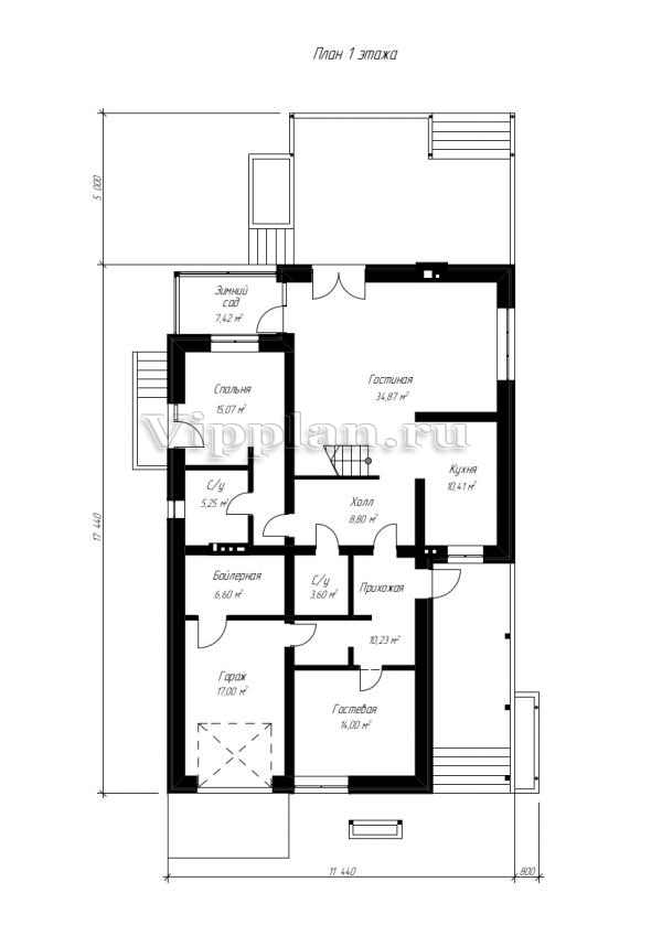
План первого этажа


Прихожая — 10,23 м2
Гостевая — 14 м2
Холл — 8,8 м2
Кухня — 10,41 м2
Гостиная — 34,87 м2
С/у — 3,60 м2
Зимний сад — 7,42 м2
Спальня — 15,07 м2
С/у — 5,25 м2
Бойлерная — 6,60 м2
Гараж — 17 м2

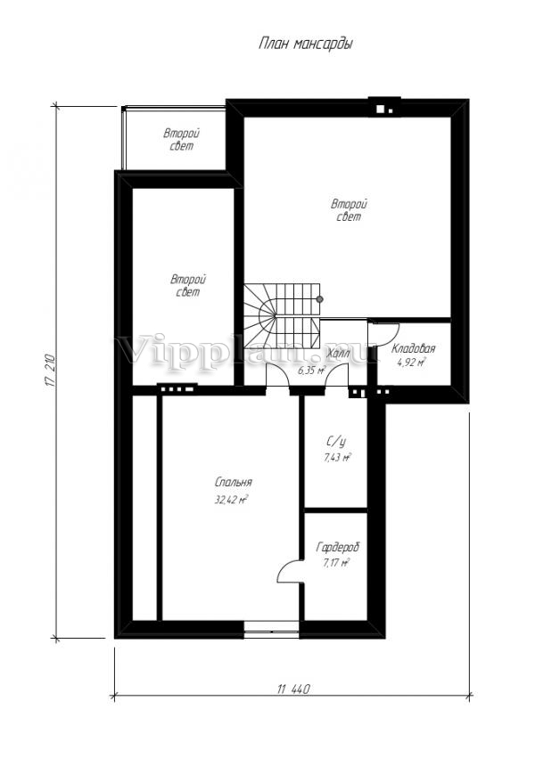
План мансардного этажа


Холл — 6,35 м2
Кладовая — 4,92 м2
Спальня — 32,42 м2
С/у — 7,43 м2
Гардероб — 7,17 м2
Проект коттеджа с мансардой и гаражом Проект коттеджа с мансардой и гаражом Проект коттеджа с мансардой и гаражом Проект коттеджа с мансардой и гаражом

Модификации проектов

Внесение изменений и привязка к участку строительства

В любой из проектов от компании VIPplan - Арсеньев по вашему желанию могут быть внесены изменения в материалы стен, материалы наружной отделки дома, а также будет произведена адаптация проекта под конкретный регион строительства (с учетом грунтов региона, геологических особенностей вашего участка и местных климатических условий) - БЕСПЛАТНО !!! (кроме проектов со скидкой и проектов наших партнеров).

Любой из проектов, размещенных на сайте arsenev.vipplan.ru мы можем выполнить из требуемых вам строительных материалов: ячеистый бетон (газобетон, пеноблок), керамоблок, кирпич, шлакоблок, бетонный блок, дерево (брус, клееный брус), каркасная технология (деревянный каркас, металлокаркас (ЛСТК)).

Фасад дома и его наружную отделку так же возможно выполнить с применением различных облицовочных материалов: структурной штукатурки, (с утеплителем и без), сайдингом (пластиковый или металлосайдинг), фиброплитами, кирпича.

 
6 Избранные
проекты

Доставка проектов по России: Москва (Московская область), Санкт-Петербург (Ленинградская область), Краснодар, Ростов-на-Дону, Ставрополь, Сочи, Волгоград, Новосибирск, Белгород, Брянск, Воронеж, Саратов, Хабаровск, Астрахань, Нальчик, Владикавказ, Екатеринбург, Тюмень, Самара, Нижний Новгород, Казань, Пермь, Уфа, Челябинск, Красноярск, Ханты-Мансийск, Иркутск, Курган, Оренбург, Омск, Томск, Барнаул, Новокузнецк, Кемерово, Абакан, Чита, Якутск, Южно-Сахалинск, Петропавловск-Камчатский и страны ближнего зарубежья: Белоруссия, Украина, Казахстан