Добро пожаловать на http://vipplan.ru

Випплан Арсеньев - это тысячи проектов домов в нашем каталоге!

Вы всегда сможете найти для себя проект дома вашей мечты! Даже если этого не случилось, мы готовы в любую минуту предложить проект индивидуального дома.

Забыли пароль?
Вы еще не регистрировались?

Перейдите по ссылке ниже на страницу регистрации.

Регистрация...

Внимание!!!

В проектную документацию могут быть внесены изменения любой сложности, в соответствии в Вашими пожеланиями!

Полезные статьи

Купить готовый проект дома или заказать индивидуальный?

Перед началом строительства дома возникает необходимость в проекте дома и тут встает вопрос: Купить готовый проект дома или заказать индивидуальный на заказ? Каждый из вариантов по своему хорош и имеет как свои плюсы так и минусы...

Применение свайных фундаментов

Сваи представляют собой длинные стержни, погруженные глубоко в грунт или изготовленные непосредственно в грунте. Покупные сваи с одной стороны имеют заостренный конец, который забивается в почву с помощью специальной техники. Установка свай, изготовленных своими руками, предполагают бурение скважин, армирование и заливку бетонного раствора. ...

Проекты домов и коттеджей > Каталог проектов домов > Проект дома с гаражом Vg2356

Проект дома с гаражом Vg2356

Проект дома с гаражом
Зарегистрируйтесь

Проект № Vg2356


Техническое описание
Общая площадь: 174.02 м2
Жилая площадь: 81.41 м2
Высота здания: 8.8 м
Размеры дома: 13.44м×14.54м
Кол-во комнат: 5
Цокольный этаж: нет
Гараж: нет
Мансарда: нет

Kонструкция
Фундамент: Утепленная шведская плита
Перекрытия: Сборные ж/б плиты перекрытия
Материал стен: Кирпич

Архитектурный раздел
Конструктивный раздел
Инженерный раздел
АР+КР - 56 000 (Со скидкой 20%)
АР+КР+ИР - 116 900 (Со скидкой 50%)
Модель проекта индивидуального двухэтажного жилого дома с размерами здания 13,44 x 14,54 м. Наружная отделка здания - облицовочный кирпич. Фундамент - утепленная шведская плита. Наружные стены - забутовочный кирпич с воздушным зазором и отделкой облицовочным кирпичом. Внутренние стены - забутовочный кирпич. Перегородки - забутовочный кирпич и гипсокартон на металлическом каркасе. Пол первого этажа - пол по фундаментной плите. Межэтажные перекрытия - сборные ж/б плиты перекрытия. Чердачное перекрытие - деревянные балки перекрытия. Крыша многоскатная. Кровля - битумная черепица. Окна - металлопластиковые. Лестница - деревянная.
Генплан застройки участка / Паспорт проекта 7000 руб / 10000 руб
Инженерный раздел (полный) 60900 руб (87000 руб)
Смета на строительство 43500 руб
Теплотехнический расчет материалов стен Бесплатно
Стоимость проекта со незначительнми изменениями 65650 руб
Стоимость проекта со средними изменениями* 78700 руб
Стоимость проекта со значительными изменениями** 82200 руб

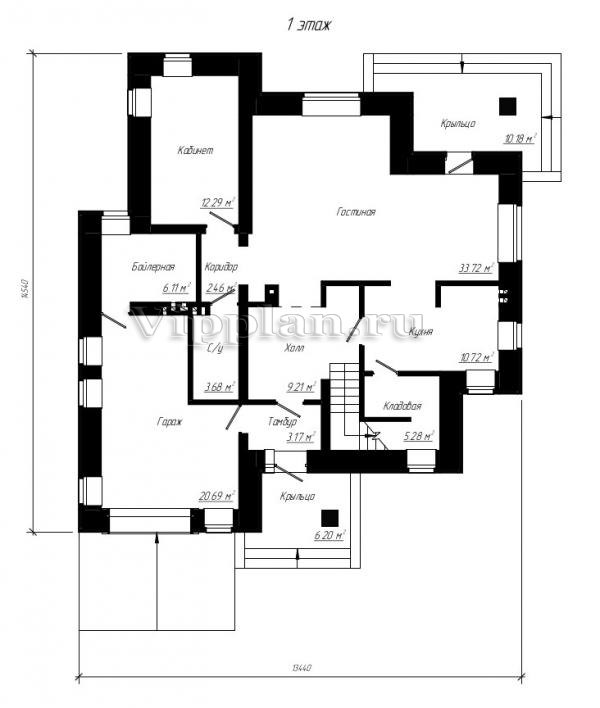
План первого этажа


Холл - 9,21 кв м
Тамбур - 3,17 кв м
Кладовая - 5,28 кв м
Кухня - 10,72 кв м
Гостиная - 33,72 кв м
Кабинет - 12,29 кв м
Коридор - 2,46 кв м
Бойлерная - 6,11 кв м
С/у - 3,68 кв м
Гараж - 20,69 кв м

Проект дома с гаражом

Проект дома с гаражом

План второго этажа


Коридор - 10,80 кв м
Помещение 1 - 2,68 кв м
Спальня - 13,65 кв м
С/у - 7,98 кв м
Спальня - 11,62 кв м
Гардероб - 6,92 кв м
Спальня - 10,13 кв м
Балкон — 2,92 м2
Проект дома с гаражом Проект дома с гаражом Проект дома с гаражом Проект дома с гаражом

Модификации проектов

Внесение изменений и привязка к участку строительства

В любой из проектов от компании VIPplan - Арсеньев по вашему желанию могут быть внесены изменения в материалы стен, материалы наружной отделки дома, а также будет произведена адаптация проекта под конкретный регион строительства (с учетом грунтов региона, геологических особенностей вашего участка и местных климатических условий) - БЕСПЛАТНО !!! (кроме проектов со скидкой и проектов наших партнеров).

Любой из проектов, размещенных на сайте arsenev.vipplan.ru мы можем выполнить из требуемых вам строительных материалов: ячеистый бетон (газобетон, пеноблок), керамоблок, кирпич, шлакоблок, бетонный блок, дерево (брус, клееный брус), каркасная технология (деревянный каркас, металлокаркас (ЛСТК)).

Фасад дома и его наружную отделку так же возможно выполнить с применением различных облицовочных материалов: структурной штукатурки, (с утеплителем и без), сайдингом (пластиковый или металлосайдинг), фиброплитами, кирпича.

 
6 Избранные
проекты

Доставка проектов по России: Москва (Московская область), Санкт-Петербург (Ленинградская область), Краснодар, Ростов-на-Дону, Ставрополь, Сочи, Волгоград, Новосибирск, Белгород, Брянск, Воронеж, Саратов, Хабаровск, Астрахань, Нальчик, Владикавказ, Екатеринбург, Тюмень, Самара, Нижний Новгород, Казань, Пермь, Уфа, Челябинск, Красноярск, Ханты-Мансийск, Иркутск, Курган, Оренбург, Омск, Томск, Барнаул, Новокузнецк, Кемерово, Абакан, Чита, Якутск, Южно-Сахалинск, Петропавловск-Камчатский и страны ближнего зарубежья: Белоруссия, Украина, Казахстан